Loading...
4 pièce(s)
3 chambre(s)
59m²

Appartement 4 pièces 58.76 m2 | STAINS - 93240 STAINS - Réf DOS1

166 216 €Honoraires à la charge du vendeur
Le Réseau HB vous présente ce bel appartement familial situé boulevard Maxime GORKI à Stains, au sein d'une résidence de la fin des années 1950, calme, entretenue et recherchée pour son cadre de vie agréable.

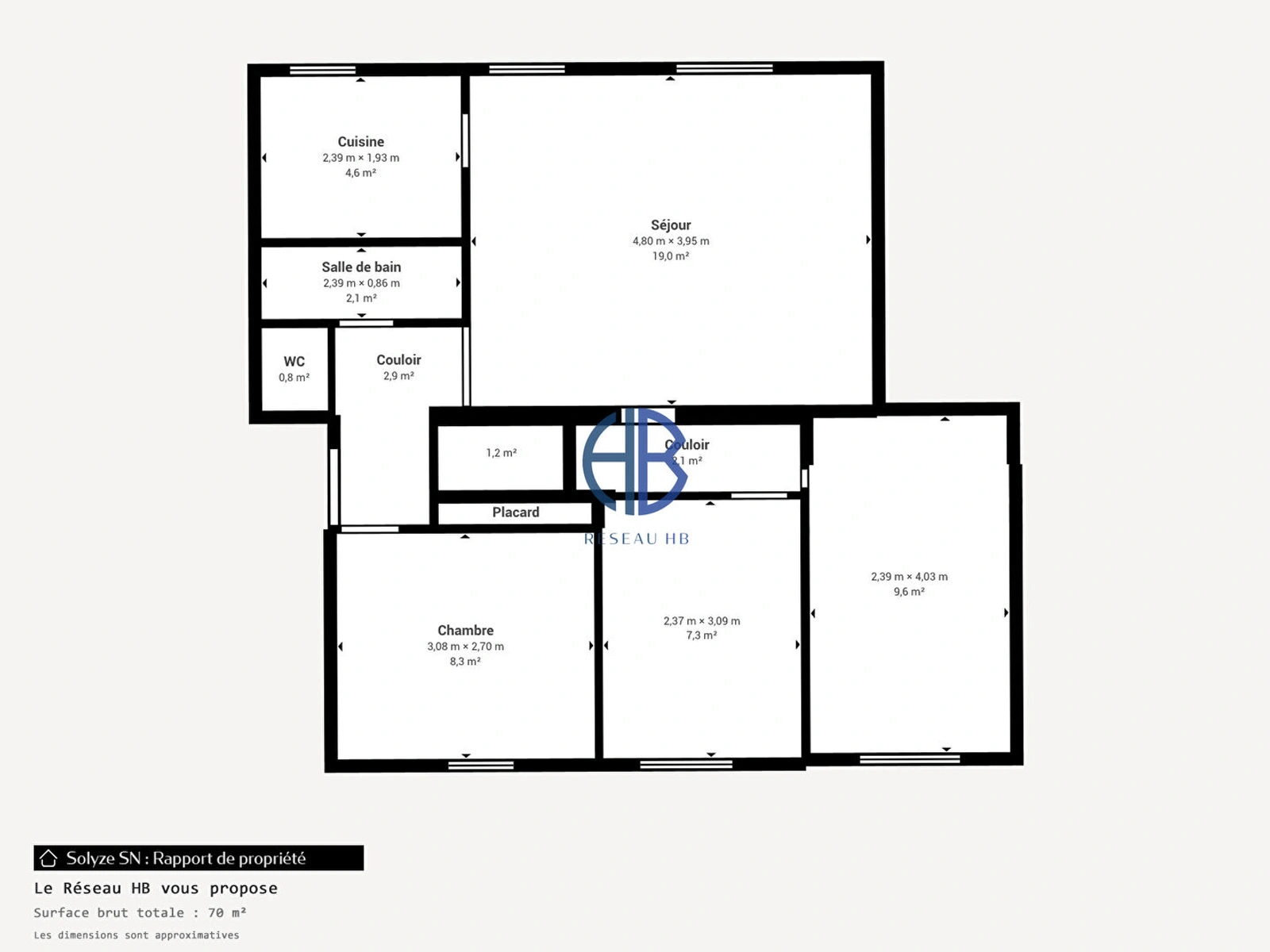
Le Bien

Niché au 3ème étage sur 4 sans ascenseur, cet appartement développe une surface habitable Loi Carrez de 58,64 m² pour une surface totale au sol de 58,71 m², offrant de beaux volumes et une distribution harmonieuse qui séduira les amateurs d'espaces fonctionnels.

Dès l'entrée de 3,46 m², vous découvrirez un volume où chaque espace a été pensé pour offrir confort et praticité au quotidien.


Le séjour de 18,91 m², constitue le véritable coeur de vie du logement. Un espace convivial où l'on s'imagine partager des repas ou des moments de détente en famille, dans une atmosphère paisible et chaleureuse

La cuisine, indépendante de 4,68 m², ravira les amateurs de gastronomie. Elle offre un cadre idéal pour cuisiner. Facile à personnaliser, cette pièce s'adaptera parfaitement à vos envies d'aménagement.

La visite se poursuit en empruntant un dégagement de 2,62 m², menant à l'espace nuit.
L'appartement offre trois véritables chambres de 9,14 m², 7,38 m² et 9,54 m², chacune constituant un lieu intime et reposant.

Toutes bénéficient d'une luminosité naturelle et d'une configuration permettant d'y installer aisément le mobilier complet d'une chambre , lit double, armoire, commode ou bureau.

Un agencement idéal pour accueillir une famille, aménager un espace de télétravail ou créer une chambre d'amis selon les besoins.

Le parquet, bien entretenu, apporte chaleur et élégance à l'ensemble, tandis que les fenêtres en double vitrage garantissent calme et isolation.


Copropriété, Fiscalité et Informations complémentaires

La résidence, construite fin des années 1950, se compose de 98 lots d'habitations. Elle offre à ses résidents un cadre de vie serein et sécurisé, renforcé par la présence d'un gardien et d'espaces communs soigneusement entretenus.

La production d'eau chaude intégrée assure un confort thermique constant tout au long de l'année.

Les charges trimestrielles (environ 531 euros) comprennent l'eau, l'entretien des parties communes ainsi que la présence du gardien garantissant simplicité et confort d'usage.

La taxe foncière s'élève à 1 600 euros par an, un montant cohérent pour le secteur compte tenu de la superficie et des prestations.

Le DPE est classé D, avec des dépenses d'énergie estimées entre 1 120 euros et 1 560 euros par an.

Une cave privative vient parfaire ce bien, idéal pour le rangement ou le stockage, et la résidence offre des places de stationnement extérieures en libre accès, non nominatives.

LOCALISATION , ENVIRONNEMENT

Situé boulevard Maxime GORKI, l'appartement profite d'un emplacement privilégié, à la fois calme et central.

Les lignes de bus à proximité (lignes 150, 250, 252, 255?) reliant rapidement la ligne 13 (Saint-Denis?Université) et la gare Pierrefitte?Stains (RER D et tram T11) permettent de rejoindre Paris en moins de 30 minutes.


Commerces, services et écoles (Joliot-Curie, Barbara, Pablo-Neruda, Maurice-Utrillo) sont accessibles à pied, tout comme le centre commercial Carrefour Stains, offrant un cadre de vie pratique et agréable au quotidien.


Un emplacement idéal pour les familles souhaitant tout avoir à portée de main, dans un appartement clé en main fonctionnel, niché au coeur d'une résidence calme et bien entretenue.

Ce bien vous intéresse ? Contactez-nous dès aujourd'hui pour en savoir plus, échanger sur votre projet et organiser une visite afin de découvrir tout le potentiel de cet appartement.

Honoraires à la charge du vendeur. Informations sur les risques disponibles sur : www.georisques.gouv.fr.

Copropriété de 196 lots dont 98 lots d'habitation.

Steeve DOUMDO (EI) Agent Commercial - Numero de RSAC : 910 118 488


Copropriété de 196 lots - dont 98 lots habitation. (Pas de procédure en cours).

Charges annuelles : 2124 euros.
Steeve DOUMDO (EI) Agent Commercial - Numéro RSAC : 910 118 488 - PARIS.
Bilan énergétique
DPE_ passoire énergétique logement extrêmement performant logement extrêmement peu performant consommation (énergie primaire) 196 kWh/m²/an émissions* 41 kgCO2/m²/an
DPE_ * Dont émissions de gaz à effet de serre peu d'émissions de CO2 émissions de CO2 très importantes 41 kgCO2/m²/an
Partager ce contenu
Vous ne trouvez pas votre bonheur ? Votre projet d'achat
Ce bien fait parti d'une co-propriété de 196 lots. Les charges sont de 2124€ par an. Pas de procédure en cours.
RESEAU HB, société au capital de 4000.00 euros. Siège social : 254 Vendome 69003 Lyon. N° de TVA intracommunautaire : FR58849010913. RCS LYON ROANNE immatriculé(e) 849010913.
Carte T : CPI 38022019000040484. Date de délivrance : 2022-04-17T08:57:17.000000Z. Lieu de délivrance : Lyon Roanne. Caisse de garantie financière : QBE. N° de caisse de garantie : 65548-3/000193/22350. Adresse de la caisse de garantie : QBE Europe SA / NV, sis Tour CBX - 1 Passerelle des Reflets - 92913 PARIS LA DEFESE CEDEX dont le siège social est au 37 Boulevard du Régent, 1000 Bruxelles - Belgique. Montant de la garantie financière : 110000 euros.
Conformément aux articles L611-1 et suivants et R612-1 et suivants du Code de la consommation, le consommateur est informé qu’il a la possibilité de saisir un ou notre médiateur de la consommation, à savoir SOCIETE MEDIATION PROFESSIONNELLE situé 24 rue Albert de Mun 33 000 Bordeaux - site : https://mediateur-consommation-smp.fr
Barème d'honoraires

Ce bien vous intéresse ?

Contactez-nous dès maintenant
Notre équipe se fera un plaisir de vous fournir toutes les informations dont vous avez besoin.
Loading...
Les informations recueillies sur ce formulaire sont enregistrées dans un fichier informatisé par Réseau HB pour gérer votre demande de contact. Elles sont conservées pour la durée nécessaire à la gestion de la relation client dans le respect des prescriptions légales applicables et sont destinées au responsable de la publication de ce site : Réseau HB.
Conformément à la loi « informatique et libertés », vous pouvez exercer votre droit d'accès aux données vous concernant et les faire rectifier en contactant Réseau HB contact@reseauhb.fr ou en utilisant ce formulaire. Nous vous informons de l’existence de la liste d'opposition au démarchage téléphonique « Bloctel », sur laquelle vous pouvez vous inscrire ici : https://www.bloctel.gouv.fr/